Property Summary
Right Choice Estate Agents are delighted to offer to market this three bedroom end terrace family home. The property offers flexible accommodation with the option of four bedrooms or having an ideal space on the ground floor for a second lounge or a space that could be used to work from home.
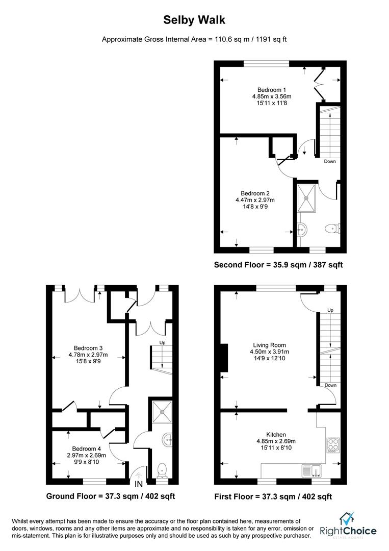
The ground floor is comprised of an entrance hallway, shower room, double bedroom and a large reception room.
The first floor offers a fitted kitchen dining room and a generous living room.
The second floor benefits from a refitted shower room and two double bedrooms.
Externally to the rear, the property boasts an enclosed garden which has gates to driveway parking and a large shed. There is also access to additional communal parking.
Additional features include double glazing and gas radiator heating.
Location: Popley is a popular residential area just north of Basingstoke town centre, offering a great mix of homes ideal for families, first-time buyers, and investors alike. The area boasts good local schools, shops and green spaces.
With convenient access to the A33, M3, and regular bus routes, plus nearby parks, and healthcare services, Popley combines suburban comfort with excellent connectivity to Basingstoke and beyond.
Tenure: Freehold
Energy Performance Certificate Rating: D
Local Authority: Basingstoke & Deane Borough Council: Band C
Viewing Details: Strictly by appointment only. Please Contact Right Choice Estate Agents.