Property Summary
*NO ONWARD CHAIN* - Right Choice Estate Agents are delighted to offer to the market this three bedroom family home in the popular area of South Ham.
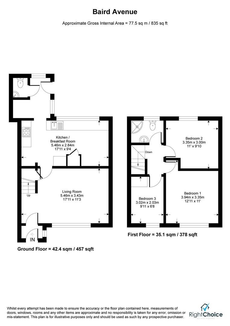
The ground floor provides an entrance porch, living room, a spacious kitchen dining room, utility and W/C.
The first floor benefits from three bedrooms two of which are well proportioned doubles and a family shower room.
Externally: At the front, there is an enclosed front garden which could be changed into driveway parking, subject to relevant consent being obtained to lower the curb. To the rear of the property there is an enclosed garden with an access gate leading to communal parking.
Location: South Ham benefits from a local Dentist, Doctors Surgery, pharmacy, convenience stores, schools, churches, parks and open space all within walking distance. The location benefits from a number of bus stops offering travel links to the Town Centre. Basingstoke Leisure Park is nearby which offers restaurants, cinema, ice rink, swimming centre and bowling alley. Basingstoke's Town Centre houses the Festival Place Shopping Centre and The Malls, and the mainline train station to London Waterloo.
Tenure: Freehold
EPC Rating: C
Local Authority: Basingstoke & Deane Borough Council - Band C
Viewing Details: Strictly by appointment only. Please Contact Right Choice Estate Agents